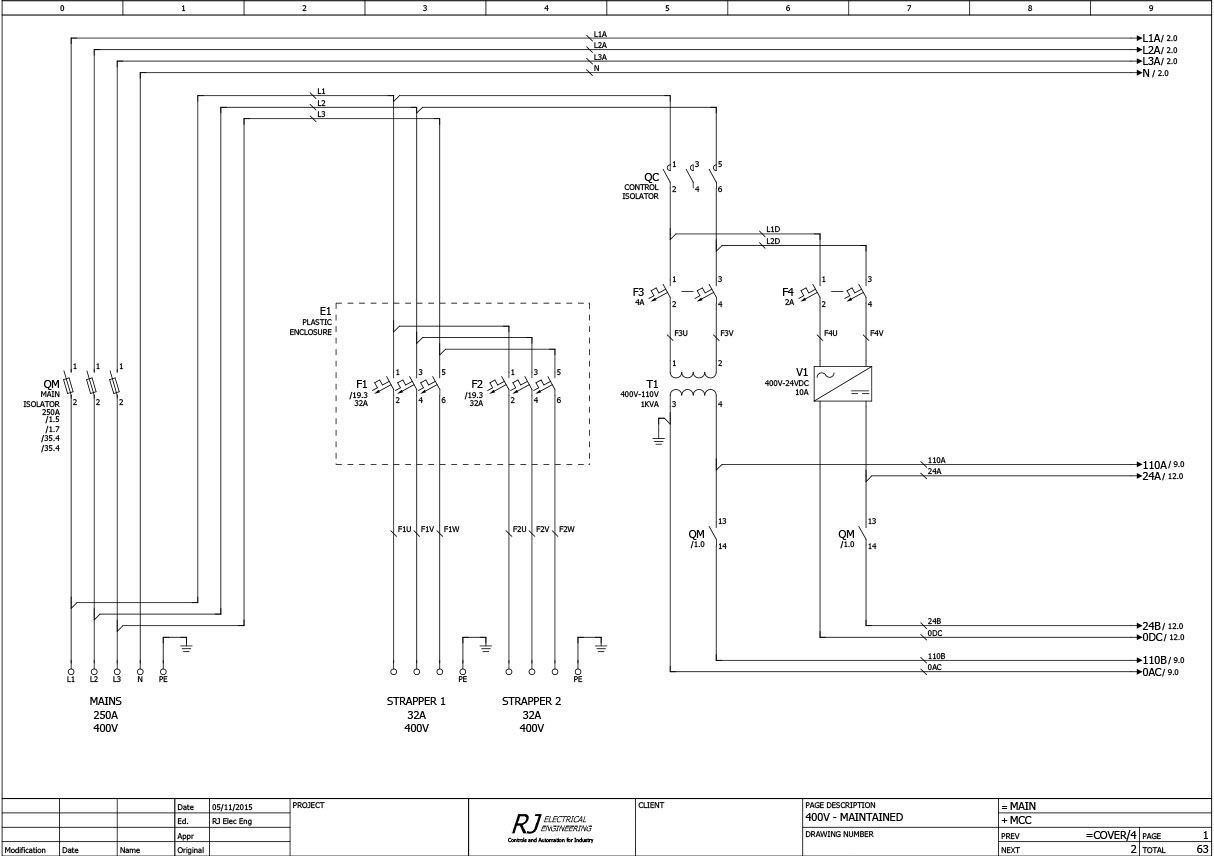
Not only do we design systems for our own manufacture, we
also design system for 3rd party manufacture; providing a complete
design package.
· Control panel layout
· Schematic diagrams
· Terminal layouts
· Cable schedules
· IO listings
We use the latest CAD software to produce clear and
comprehensive documentation.


